Verkocht: Rederijkersplein, 2203 GC Noordwijk
Verkocht C

Rederijkersplein, 2203 GC Noordwijk

Beschrijving Rederijkersplein

Deze woning is succesvol verkocht dankzij de adviezen en begeleiding van Issac Makelaardij, nog voordat deze op onze eigen website en Funda werd geplaatst. Deze registratie is nodig voor de statistieken van de uitwisselingssystemen en bevat daarom slechts beperkte gegevens.
Rederijkersplein, 2203 GC Noordwijk

Kenmerken

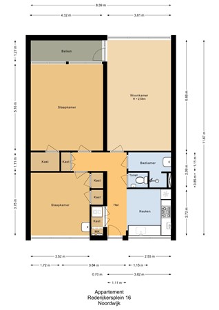
Type object Appartement, galerijflat
Bouwperiode 1971
Status Verkocht
Aangeboden sinds Maandag 9 maart 2026