Neues Kaufangebot: Stiemensvaart 1, 2497 ZD Den Haag
Neues Kaufangebot: Stiemensvaart 1, 2497 ZD Den Haag
Neues Kaufangebot: Stiemensvaart 1, 2497 ZD Den Haag
Neues Kaufangebot A

Stiemensvaart 1, 2497 ZD Den Haag

545.000,- €

Een ideale gezinswoning met ruimte, comfort én een fijne woonomgeving.

Royale twee-onder-een-kapwoning in de geliefde Waterbuurt (Ypenburg). ***** find English translation below *****

- bezichtiging graag aanvragen via Funda of onze website -

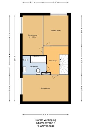
Aan de rustige Stiemensvaart, in de kindvriendelijke Waterbuurt van Ypenburg, staat deze royale twee-onder-een-kapwo...

Eckdaten

Immobilienart Haus, Einfamilienhaus, Doppelhaushälfte
Baujahr 2001
Status Neues Kaufangebot
Angeboten seit Freitag, 10. Oktober 2025

Ansicht Stiemensvaart 1?

Gerne vereinbaren wir mit Ihnen einen Besichtigungstermin. Während der Anzeige wird Ihnen ein Broker alles mitteilen, was Sie wissen möchten.