Beschrijving

Ruime gezinswoning met zonnige diepe tuin in het geliefde Oude Dorp

Ben je op zoek naar een ruime, lichte én sfeervolle tussenwoning waar jouw gezin alle kanten op kan? Een thuis dat meteen goed voelt en waar kinderen naar hartenlust kunnen spelen, binnen én buiten? Stop maar met zoeken: Linnaeuslaan 28 is precies zo'n huis!

Rustig wonen in een gezellige buurt

Deze fijne eengezinswoning uit 1964 ligt in de lommerrijke straten van Voorhout. De wijk staat bekend om haar vriendelijke sfeer, kindvriendelijke karakter en de veilige speelplekken vlakbij huis. Bovendien ben je hier overal zó: basisscholen op loopafstand, winkels en sportverenigingen om de hoek, en het OV brengt je snel naar omliggende steden als Leiden of Haarlem. Ideaal voor gezinnen die het beste van beide werelden willen: rust, ruimte en toch overal dichtbij.

Ruimte vol mogelijkheden

De begane grond nodigt meteen uit. Typisch jaren '60 zijn de royale raampartijen waardoor het zonlicht de woonkamer royaal binnenvalt. Zo heb je altijd een mooie, lichte plek om samen te komen, of dat nou tijdens een uitgebreid ontbijt in de ochtendzon is, of bij een gezellige filmavond op de bank. De keuken aan de achterzijde biedt alle ruimte en van hieruit kijk je uit over de diepe achtertuin, zodat je altijd zicht houdt op spelende kinderen.

Tuinliefhebber? Kom maar op!

Met een perceel van maar liefst 197 m2 en een totale tuinoppervlakte van 147 m2 kunnen kinderen hier écht hun gang gaan. Lekker voetballen in de achtertuin of samen barbecueën tijdens lange zomeravonden? Het kan allemaal! De voortuin zorgt voor extra privacy én draagt bij aan die mooie groene uitstraling van de straat. Nog een pluspunt: door de ligging op het zuiden geniet je bijna de hele dag van de zon.

Boven slapen, beneden leven

Boven zijn er voldoende slaapkamers om iedereen een eigen plekje te geven. De rustige kamers bieden ruimte voor groeiende gezinnen van kinderkamer tot fijne thuiswerkplek. De badkamer is functioneel en netjes, met mogelijkheden om aan jouw wensen aan te passen wanneer je daar zelf zin in hebt.

Kortom: hier voelt elke dag als thuiskomen

Of je nu net begint met je gezin, of groeit en ruimte zoekt voor iedereen: Linnaeuslaan 28 biedt alles wat je zoekt. Een rustige omgeving, volop leefruimte, zonnige tuin en talloze mogelijkheden om van dit huis jouw écht favoriete plek te maken.

Kijk, proef de sfeer en ervaar hoe het voelt om hier thuis te komen. Deze woning wacht op het volgende gezin dat hier met net zoveel plezier zal wonen als de huidige bewoonster. Word jij dat? Neem snel contact op en plan een bezichtiging. We laten het je met alle plezier zien!

Indeling
Begane grond
Entree, hal met meterkast, trapkast en toiletruimte. Lichte woonkamer. Dichte keuken aan de achterzijde met toegang tot de tuin. Vanuit de hal trap naar de eerste verdieping.

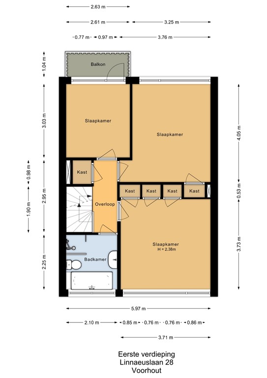
Eerste verdieping
Overloop, drie slaapkamers, waarvan één met toegang tot het balkon op het zuidoosten. Badkamer voorzien van douche, wastafel en toilet. Diverse vaste kasten.

Tweede verdieping
Overloop, twee slaapkamers en bergruimte achter de knieschotten. Tevens extra berging aanwezig.

Buitenruimte
Voortuin. Diepe achtertuin met achterin een vrijstaande berging en achterom.

Bijzonderheden
•	Zonnige achtertuin op het zuiden met berging en achterom
•	5 slaapkamers, ideaal voor gezinnen of thuiswerken
•	Lichte doorzonwoonkamer met grote raampartijen
•	Rustige ligging in kindvriendelijke woonwijk
•	Nabij centrum, scholen, winkels en NS-station
•	Woning met mogelijkheden om naar eigen smaak te moderniseren

Deze informatie is nauwkeurig en met zorg samengesteld aan de hand van gegevens, die aan ons zijn verstrekt. Ondanks het bovenstaande aanvaarden wij geen enkele aansprakelijkheid ten aanzien voor onvolledigheid, onjuistheid of anderszins, dan wel de gevolgen ervan en kunnen er geen rechten aan worden ontleend.

Kenmerken