Beschrijving

Op loopafstand van zee: vier woonlagen vol ruimte, comfort en verhuumogelijkheden

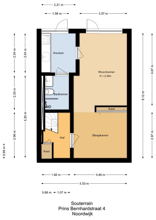
Souterrain met eigen entree, volledig gemeubileerd inbegrepen in de koopsom. Direct te verhuren en dus meteen rendement.

Wonen aan de kust met de luxe van ruimte en comfort? Deze karaktervolle woning aan de Prins Bernhardstraat 4 in Noordwijk aan Zee biedt het allemaal. Verdeeld over vier volwaardige woonlagen vind je hier een verrassend royale gezinswoning van maar liefst 160 m² woonoppervlak. De woning is modern afgewerkt, beschikt over een apart souterrain met eigen entree en biedt leefcomfort op elk niveau. En alsof dat nog niet genoeg is: de achtertuin biedt bovendien mogelijkheden voor het realiseren van een zomerhuis, een fijne extra plek voor logees, ontspanning of aanvullende verhuur.

Souterrain – eigen domein of verhuurmogelijkheid
Het souterrain is in 2024 volledig gerenoveerd en doet denken aan een stijlvolle hotelkamer: luxe materialen, een pvc-vloer in licht eiken, een eigen keuken met degelijke houten kasten en een moderne badkamer. Dankzij de aparte en fraaie entree is deze verdieping ideaal voor verhuur, een studio aan huis of een zelfstandige woonruimte voor een ouder of studerend kind. De inrichting, inclusief meubels, blijft achter zodat je hier direct gebruik van kunt maken en is inbegrepen in de prijs.

Begane grond – sfeer en stijl
Bij binnenkomst kom je in een ruime hal die zowel toegang geeft tot de woning als tot het separate souterrain. In de gang bevindt zich een recent vernieuwd gastentoilet. Vanuit de gang stap je de lichte woonkamer binnen met halfopen keuken en toegang tot het balkon aan de achterzijde. De donkere eikenhouten vloer en zwarte designradiator zorgen voor een stijlvolle, eigentijdse uitstraling.

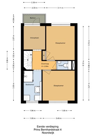
Eerste verdieping – praktisch en comfortabel
Op de eerste etage bevinden zich drie slaapkamers, waarvan één is ingericht als royale inloopkast. De moderne badkamer beschikt over een inloopdouche met regendouche, wastafelmeubel, wasmachine- en drogeraansluiting en een designradiator. Daarnaast is er een apart toilet aanwezig.

Tweede verdieping – privacy en extra ruimte
De zolderverdieping biedt een sfeervolle slaapkamer met dakraam en dakkapel, wastafel en een derde badkamer met ligbad en toilet. Slimme inbouwkasten en bergruimte zorgen dat alles netjes is weggewerkt.

Locatie – wonen waar anderen vakantie vieren
De ligging is perfect: op slechts enkele minuten lopen van de boulevard, het strand en de duinen. Ook supermarkten, winkels en horeca liggen om de hoek. De achtertuin en het balkon liggen op het oosten, waardoor je ’s ochtends heerlijk in de zon kunt ontbijten.

Pluspunten op een rij:
- Vier volwaardige woonlagen
- Souterrain met eigen entree, ideaal voor verhuur of kangoeroewoning
- Zomerhuis mogelijk in achtertuin
- Volledig gerenoveerd souterrain (2024)
- Drie badkamers, houten vloeren en HR++-beglazing
- Ligging op loopafstand van zee, winkels en boulevard
- Instapklaar en snel beschikbaar

Wil je wonen in een huis dat méér biedt, met veel ruimte én mogelijkheden? Maak dan snel een afspraak voor een bezichtiging.

Deze brochure is met zorg samengesteld aan de hand van gegevens die aan ons zijn verstrekt. Ondanks de zorgvuldigheid aanvaarden wij geen aansprakelijkheid voor eventuele onvolledigheden of onjuistheden, noch kunnen er rechten aan worden ontleend.

Kenmerken