Beschrijving

Morgenster 62, Noordwijk: Ruimte, licht en comfort vlak bij zee

Stap binnen in deze royale hoekwoning (2008) met maar liefst vier slaapkamers, een zonnig dakterras én een onderhoudsvriendelijke tuin. Dankzij de ligging in een rustige, kindvriendelijke wijk en de nabijheid van strand, winkels en scholen, is dit de ideale gezinswoning!

LET OP: bieden-vanaf-prijs is € 600.000,- 

Indeling:

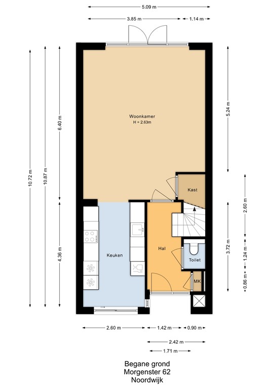
Begane grond
Via de entree kom je in de ruime hal met garderobe, meterkast en modern toilet. De woonkamer met trapkast is licht en uitnodigend, met openslaande deuren naar de tuin. De open keuken aan de voorzijde is voorzien van een plafondhoog raam, waardoor er de hele dag prettig daglicht binnenvalt. De gehele begane grond is voorzien van vloerverwarming en plavuizen. Comfortabel én praktisch.

Eerste verdieping
Op de eerste verdieping zijn drie goed bemeten slaapkamers met laminaatvloer. De ruime badkamer is uitgerust met een douche, ligbad, dubbele wastafel en een raam voor natuurlijke ventilatie. Op de overloop vind je een separaat tweede toilet en een handige bergkast.

Tweede verdieping
De vaste trap leidt naar de overloop met een royale vierde slaapkamer, ook zeer geschikt als werk- of hobbyruimte. De zolderkamer was oorspronkelijk verdeeld in twee ruimtes en kan met een kleine ingreep, het plaatsen van één muur en een deur, eenvoudig weer in twee kamers worden omgezet. Aan de voorzijde is een grote ruimte met voorbereide aansluitingen voor een tweede badkamer en toegang tot een heerlijk zonnig dakterras. Tevens zijn hier de aansluitingen voor wasmachine en droger. De gloednieuwe cv-installatie en de apparatuur voor de 15 zonnepanelen is hier ook geplaatst.

Buitenruimte
De onderhoudsvriendelijke achtertuin is volledig bestraat en voorzien van een praktische schuur voor fietsen en extra opslag.

Pluspunten op een rij:

- Ruime hoekwoning met 4 slaapkamers
- Mogelijkheid tot tweede badkamer
- Zonnig dakterras en onderhoudsvriendelijke tuin met berging
- Comfort: vloerverwarming en isolerende beglazing
- Duurzaam: 15 zonnepanelen, nieuwe cv-installatie (december 2025) en energielabel A
- Rustige, kindvriendelijke wijk nabij winkels, scholen en sportvoorzieningen
- Uitstekende bereikbaarheid richting Den Haag, Rotterdam, Amsterdam en Leiden
- Op fietsafstand van zee en strand

De bieden-vanaf-prijs is € 600.000,- k.k. en de oplevering is in overleg. Biedingen onder dit bedrag worden niet in overweging genomen. 

Deze brochure is nauwkeurig en met zorg samengesteld aan de hand van gegevens, die aan ons zijn verstrekt. Ondanks het bovenstaande aanvaarden wij geen enkele aansprakelijkheid ten aanzien voor onvolledigheid, onjuistheid of anderszins, dan wel de gevolgen ervan en kunnen er geen rechten aan worden ontleend.

Kenmerken