Beschrijving

Heilige Geestweg 51 –  instapklaar appartement in hartje Noordwijk Binnen

Wonen midden in de oude dorpskern, maar dan in een appartement dat je gewoon kunt betrekken zonder klussen. Dit recent volledig vernieuwde appartement heeft zijn entree aan de kant van de Voorstraat en ligt aan de achterzijde. Daar openen dubbele deuren naar buiten, waar eenvoudig een fijn tuintje te realiseren is, precies genoeg voor zon, koffie en een glas wijn zonder dat je een zaterdag kwijt bent aan tuinieren.

Binnen is alles aangepakt. Keuken en badkamer zijn nieuw (2026), de afwerking strak en modern en de visgraat laminaatvloer geeft het geheel meteen karakter. Verwarming en koeling verlopen via twee airco-units; warm water via een boiler in de badkamer. Gasloos en overzichtelijk.

Indeling

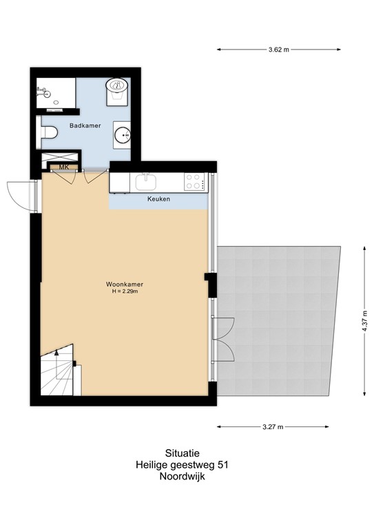
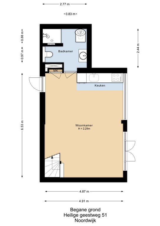
Begane grond
Via de entree aan de Voorstraat kom je, via de algemene ruimte, direct in de woonkamer. Door de openslaande deuren aan de achterzijde valt het licht diep de ruimte in, waardoor het geheel groter aanvoelt dan je op basis van de meters verwacht. De open keuken, voorzien van inbouwapparatuur is praktisch opgesteld langs de wand. Aansluitend bevindt zich de moderne badkamer (2026) met douche, wastafelmeubel, toilet en ruimte voor de wasmachine. 

Eerste verdieping
Via de vaste trap bereik je de ruime open slaapverdieping. Door de kapconstructie ontstaat een speelse ruimte met een nokhoogte van ca. 2,33 m en praktische knieschotten voor bergruimte. Groot genoeg voor een volwaardig slaapgedeelte en werkplek.

Kenmerken
- Volledig gerenoveerd appartement
- Keuken en badkamer vernieuwd in 2026
- Visgraat laminaatvloer
- Verwarmen en koelen via 2 airco-units
- Warm water via boiler
- Entree aan de Voorstraat
- Openslaande deuren aan achterzijde
- Mogelijkheid tot realiseren tuintje
- Gelegen in karakteristiek Noordwijk Binnen

Een ideaal appartement voor wie centraal wil wonen, maar geen zin heeft in een verbouwing. Sleutel omdraaien, meubels neerzetten en klaar.

Deze informatie is nauwkeurig en met zorg samengesteld aan de hand van gegevens, die aan ons zijn verstrekt. Ondanks het bovenstaande aanvaarden wij geen enkele aansprakelijkheid ten aanzien voor onvolledigheid, onjuistheid of anderszins, dan wel de gevolgen ervan en kunnen er geen rechten aan worden ontleend. De woning wordt verkocht 'as is' en er is een 'niet-zelfbewoning' clausule van toepassing.

Kenmerken