Beschrijving

Levendig wonen tussen winkels en gezelligheid met het strand op fietsafstand. (wij behandelen alleen online aanvragen via Funda, Pararius en onze website)

Stel je voor: je woont midden in de charmante oude dorpskern van Noordwijk-Binnen, op steenworp afstand van de karakteristieke Voorstraat, het gezellige Lindenplein en de bruisende Kerkstraat. Deze goed onderhouden eengezinswoning combineert het beste van twee werelden: de levendige sfeer van het dorp én de rust van een zonnige achtertuin, vier slaapkamers en een comfortabele indeling. Binnen enkele minuten sta je met je voeten in het zand of wandel je door de duinen en dat allemaal vanaf je eigen voordeur.

Indeling

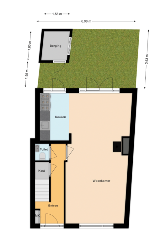
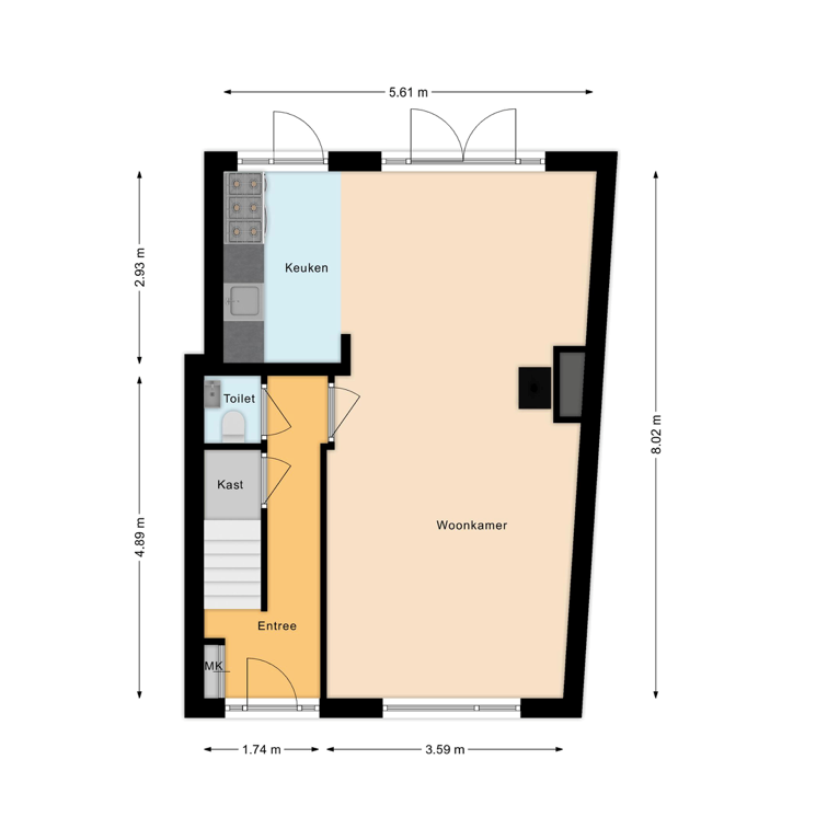
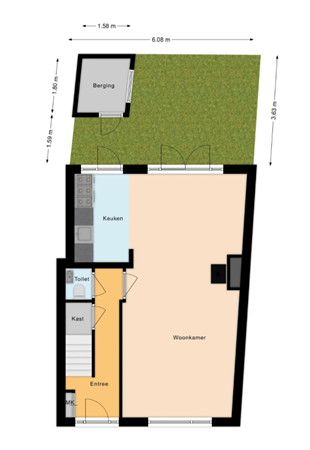
Begane grond: Entree, hal, verdiepte kelderkast, toiletruimte met vrijdragend toilet en fonteintje. De woonkamer is opvallend licht en biedt via openslaande deuren direct toegang tot de zonnige tuin. De gloednieuwe open keuken heeft eveneens een deur naar buiten.  

Eerste verdieping: Overloop, drie slaapkamers van prettig formaat en een eigentijdse badkamer (2019) met douchecabine, duo wastafelmeubel en vrijhangend toilet.  

Tweede verdieping: Via een vaste trap bereik je een royale zolderkamer met volop bergruimte, wasmachineaansluiting en cv-opstelling (Intergas HRE combiketel, huur, 2019). Hier is eenvoudig een extra kamer te realiseren.

Buiten: De achtertuin ligt op het zuiden, is netjes aangelegd en voorzien van zonwering en een achterom. De stenen berging biedt praktische opbergruimte.  
De woning is voorzien van dubbele beglazing, deels HR++ glas en heeft energielabel C.

Kenmerken:
- Bouwjaar: 1937  
- Woonoppervlakte: 116 m²  
- Perceeloppervlakte: 73 m²  
- Energielabel: C
- woning wordt gestoffeerd opgeleverd 

Additionele informatie:
- Deze woning wordt enkel verhuurd aan huurders met een duurzame gezinssituatie of alleenstaanden  
- Roken is niet toegestaan  
- Huurprijs exclusief GWE, TV + internet en gemeentelijke lasten  
- Vergoeding stoffering: € 100,- per maand  
- Toewijzing voorbehouden aan gunning verhuurder  
- in verband met levertijden zijn een aantal foto's vervangen door Artist impressies

Kenmerken