Beschreibung

Deze woning is succesvol verkocht dankzij de adviezen en begeleiding van Issac Makelaardij, nog voordat deze op onze eigen website en Funda werd geplaatst. Deze registratie is nodig voor de statistieken van de uitwisselingssystemen en bevat daarom slechts beperkte gegevens.

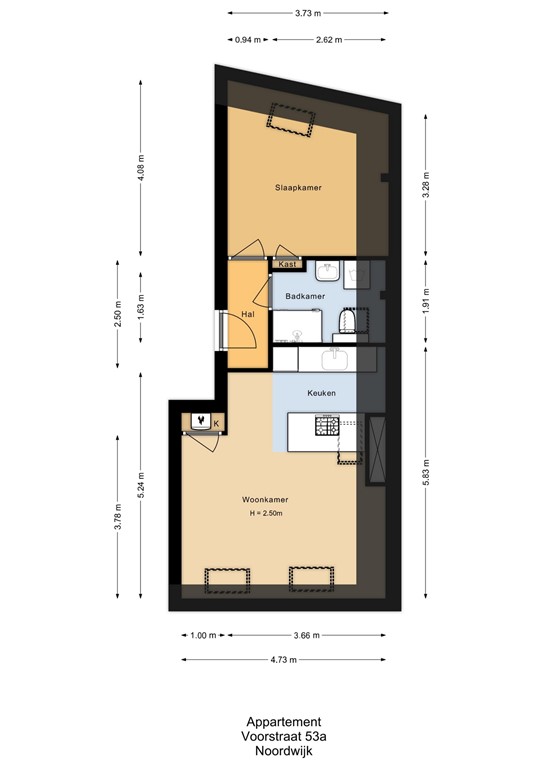
Stap binnen in dit knusse 2-kamerappartement met berging, gelegen op de Voorstraat in het charmante Noordwijk Binnen. Met zijn in totaal ruim 40 vierkante meter op de tweede en hoogste verdieping van een kleinschalig appartementengebouw, biedt dit huis comfort en een uitstekende locatie.

Bij binnenkomst leidt de centrale entree je naar de trap die je naar dit gezellige thuis brengt. De slaapkamer aan de voorzijde is ruim en rustig, met een dakraam voor natuurlijk licht en een meterkast.

De moderne badkamer is het middelpunt van het appartement, met een royale douche, een keramische wastafel en een slimme spiegelkast. Alles is in 2022 vernieuwd, inclusief het toilet en een handige designradiator.

Aan de achterzijde van het appartement vind je de woonkamer met open keuken, voorzien van alle benodigde apparatuur. Dankzij de in 2021 vernieuwde leidingen is de keuken zowel praktisch als stijlvol.

De opstelplaats van de C.V.-combiketel is slim geïntegreerd in een kast in de woonkamer, en voor extra opslagruimte is er een berging in de kelder.

Wat dit appartement extra aantrekkelijk maakt, is de eenvoudige VvE-regeling (geen actieve VVE). Met een kleine maandelijkse bijdrage worden de dagelijkse zaken geregeld. 

Mis deze kans niet om te genieten van comfortabel wonen op een fantastische locatie. Neem vandaag nog contact met ons op voor een bezichtiging!

Eckdaten